Cas de succès

Revenir

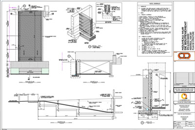
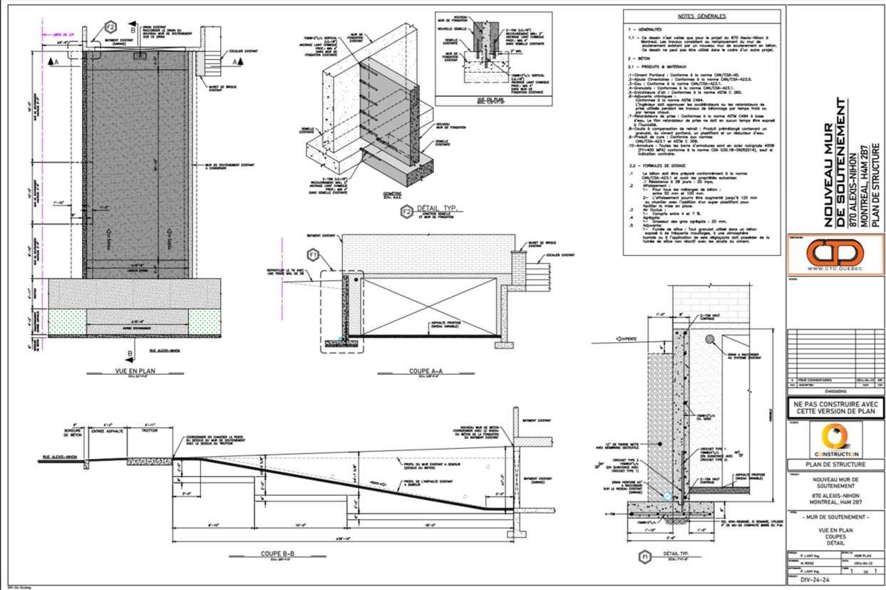
Reconstruction d'un Mur de Soutènement

Emplacement: Boulevard Alexis Nihon, Ville Saint Laurent
Projet: Reconstruction d'un Mur de Béton



Chez Conception Structurelle, nous avons été engagés pour un projet complexe de reconstruction d'un mur de béton fissuré. Ce projet a mis en lumière notre capacité à gérer des défis techniques tout en respectant les délais et les attentes du client.

Défi: Reconstruire un mur de béton fissuré à haut risque de s'effondrer.

Solution: Après avoir évalué la situation, nous avons conclu que le problème était probablement dû à un apport important d'eau de drainage derrière le mur, augmentant considérablement les charges supportées. Nous avons également supposé que le mur présentait des déficiences au niveau de la fondation, hypothèse confirmée après la démolition.

Nous avons planifié l'intervention et élaboré des directives claires sur un plan d'ingénierie. Au fur et à mesure de la démolition, nous avons découvert que le mur avait été construit sans fondation ni drainage. Face à ce constat, le client a décidé de démolir complètement les deux murs et de les reconstruire en blocs de béton. Cela a nécessité une révision complète de la planification et une réaction rapide pour mobiliser différentes équipes sans impacter le planning du client ni celui de notre entreprise.

Nous avons planifié l'intervention et élaboré des directives claires sur un plan d'ingénierie. Au fur et à mesure de la démolition, nous avons découvert que le mur avait été construit sans fondation ni drainage. Face à ce constat, le client a décidé de démolir complètement les deux murs et de les reconstruire en blocs de béton. Cela a nécessité une révision complète de la planification et une réaction rapide pour mobiliser différentes équipes sans impacter le planning du client ni celui de notre entreprise.

Résultat: Nous avons livré les travaux demandés à la pleine satisfaction du client, en respectant les règles de l'art et les normes techniques en vigueur. Ce projet a démontré notre capacité à adapter nos plans en fonction des découvertes sur le terrain et à garantir la sécurité et la durabilité des structures.

Cas de succès

Découvrez nos services

Chez Conception Structurelle, nous transformons vos idées en structures
sûres et durables avec un accent sur la qualité et l'intégrité.